Contact
info@mero.mx
+55 7586 6906

Av. Paseo de la Reforma 2420 BIS
Lomas Altas, Mexico City

Casa Quijote
Casa Quijote
Year
2022
Area
387 m2
Design & Site Supervision

Horacio G. Merediz, Rodrigo Degetau, Diego Alpizar, David Gómez

Procurement Coordination

Fernanda Andrade

Press & Communications

Brenda Isabel Pérez

General Contractor

Gladys Fuentes

Woodwork & Custom Millwork

Roberto Álvarez

Photography

Alum Galvez

Furnishings

David Pompa, Rokam, Casa Quieta, La Metropolitana, RADALK

Casa Quijote is a renovation and reinterpretation of one of the mid-20th-century residences designed by Engineer Boris Albin in Tecamachalco. The project is rooted in a continuous dialogue with the home’s inhabitants and a deep analysis of Albin’s spatial philosophy.

The close relationship between Estudio Mero and the resident family provided invaluable insight during the design process, revealing a shared vision with the original project: a pursuit of spatial simplicity, functionality, and openness.Casa Quijote expresses its simplicity through the versatile application of wood across floors, walls, and ceilings. This material establishes a dialogue with a palette of grey tones that amplify light and space, while simultaneously nodding to the original architecture—specifically the striated concrete of the façade.
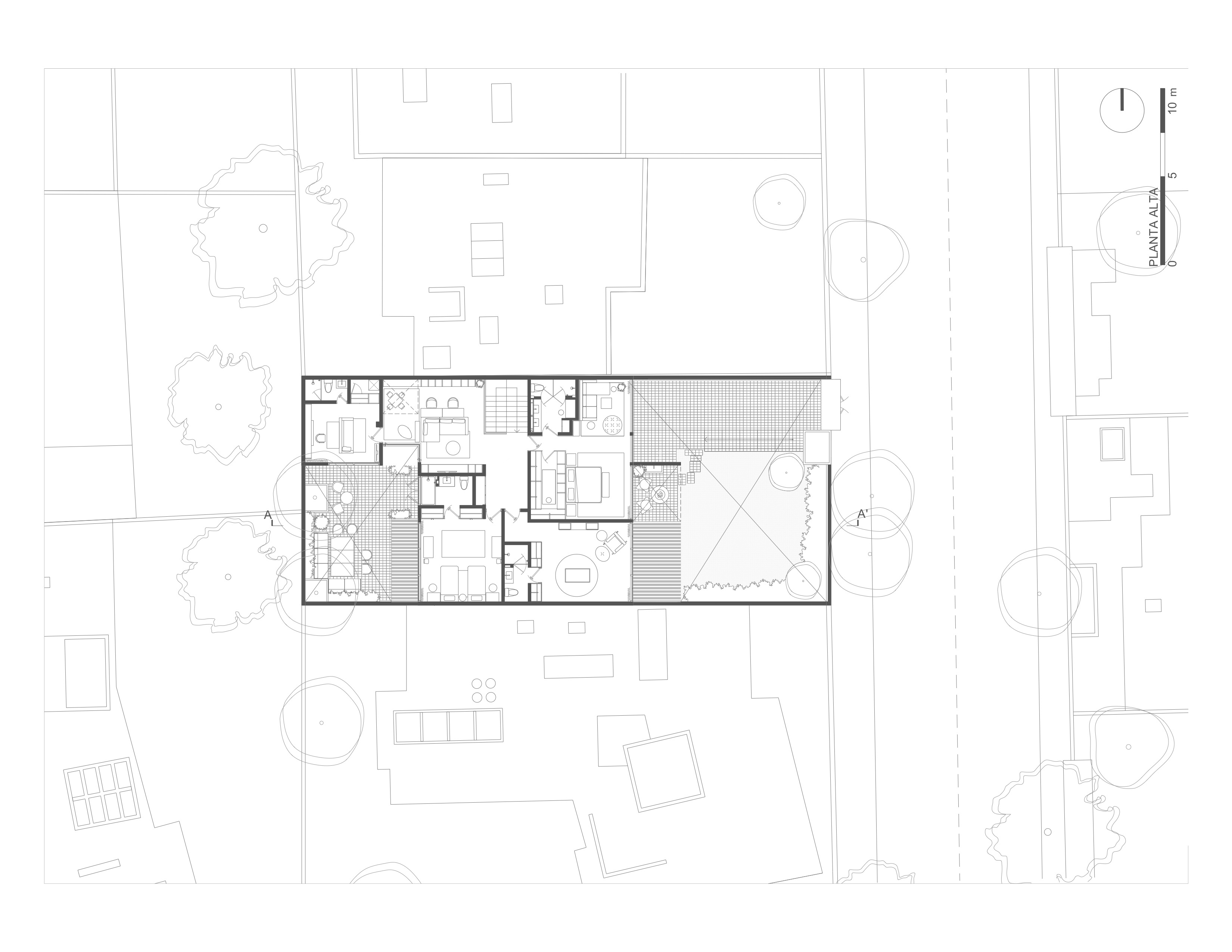
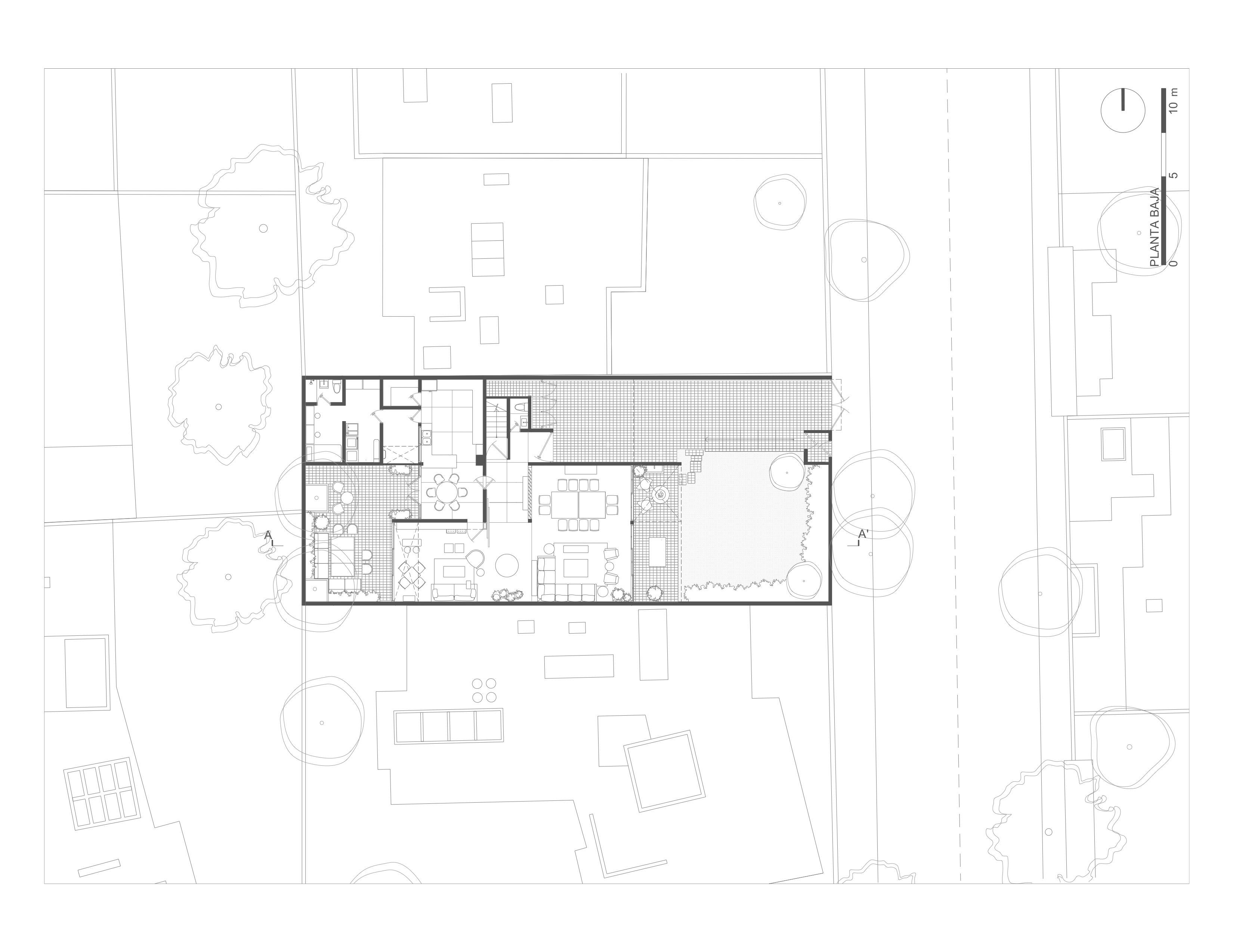
The program is distributed across two levels. The ground floor houses the living rooms (which can be adjusted in size), the dining area, a front terrace, and a rear terrace connected to the kitchen, breakfast nook, powder room, and service areas that sustain the home’s vitality. The upper floor features a more intimate family room and the master bedroom, complete with a walk-in closet and en-suite bathroom.

Planta Baja Casa Quijote
Planta Alta Casa Quijote
Corte Casa Quijote

Casa Quijote is a renovation and reinterpretation of one of the mid-20th-century residences designed by Engineer Boris Albin in Tecamachalco. The project is rooted in a continuous dialogue with the home’s inhabitants and a deep analysis of Albin’s spatial philosophy.