Contacto
info@mero.mx
+55 7586 6906

Av. Paseo de la Reforma 2420 BIS
Lomas Altas, Ciudad de México

PH Mazatlán
PH Mazatlán
Año
2022
Proyecto y obra

Horacio G. Merediz, Rodrigo Degetau, Diego Alpizar, Erika Forte

Construcción

Roberto Álvarez 

Coordinación de compras

Fernanda Andrade

Prensa y comunicación

Brenda Isabel Pérez

Paisaje

Flor y barro / Jessica Ponce de León

Cocina

Cocinas Sevilla

Arte

Adán Paredes 

Clientes

Gabriela García

Fotografía

Cuadra Estudio, Omar Chávez Godoy

Mobiliario

Canto Artesanos, David Pompa, Rokam, Casa Quieta, Taller Luum, Tributo, RADALK

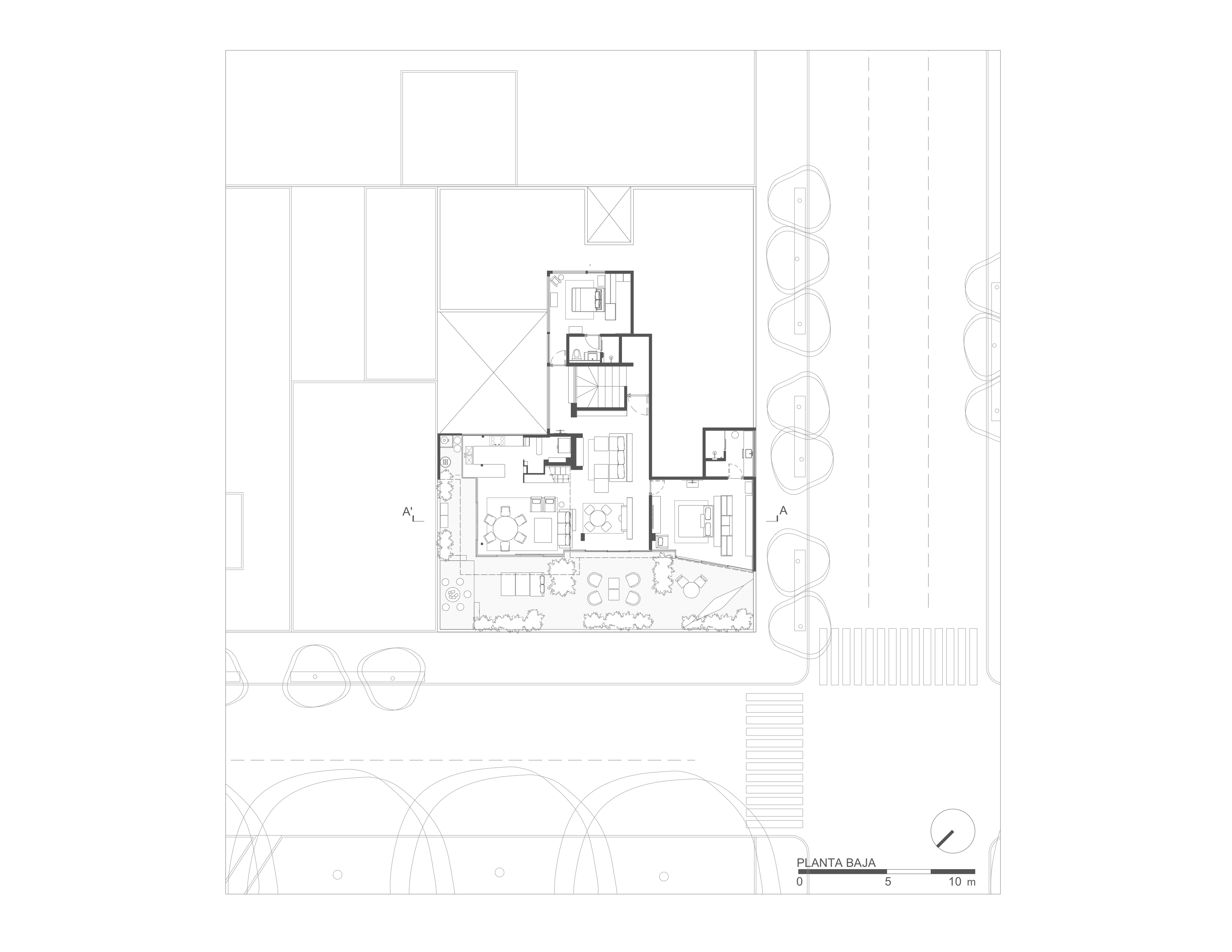
PH Mazatlán es la radiografía de las necesidades y los deseos de sus habitantes, una mujer y su familia, su convivencia doméstica es el eje del proyecto. Ubicado en el penthouse de un edificio Estilo Internacional construido por el Ingeniero Civil Boris Albin, en la Colonia Condesa, PH Mazatlán es una apuesta al movimiento, ya que transforma su diseño preexistente y lo flexibiliza para un habitar distinto. Se amplió el programa arquitectónico, generando diferentes ambientes de convivencia comunal, espacios para leer, estudiar, conversar, comer, trabajar y cocinar y por otro lado, espacios privados como las dos habitaciones con baños independientes. 
Se conservó gran parte del mobiliario y el arte de la propietaria, se diseñaron libreros para su extenso acervo, mismos que acompañan el corredor del acceso, y el escultor Adán Paredes realizó una pieza en sitio que genera juegos de sombras fascinantes. El mobiliario, la madera y el recinto dialogan con el acero y el cristal en muros y el multipanel industrial del techo, evidenciando una constante negociación del espacio y habitabilidad. 
Debido a que el proyecto se realizó durante COVID-19, la ventilación cruzada, la doble altura y la terraza amplia con vista hacia Av. Reforma se convirtieron en lo más importante y por ello, el diseño de paisaje también tomó relevancia; es a través de él que se enmarca el exterior y se protege del calor. La vegetación emula la cualidad frondosa de los bosques a través de diferentes plantas, árboles y arbustos como los romeros, festucas, olivos, juníperos, ayubes, salvias y santolinas. 

3 Sección PH Mazatlán
1 Planta baja PH Mazatlán
2 Planta baja PH Mazatlán